老房子普遍存在的格局昏暗、收纳不足等问题,如何通过设计得以解决?本期分享的这套由轩怡家装成的121㎡原木风改造案例,为我们提供了一个完美范本。设计师通过重塑空间动线与全屋定制,让老旧房屋焕然一新,变身通透、能装又治愈的理想家。
项目信息
地点:佛山顺德
小区:宝翠花园
户型:121㎡ 三房两厅
风格:原木自然式风格


一、 格局重塑:砸墙引光,打造通透流动空间
旧房改造的第一步,往往是打破陈旧格局。本案中,轩怡家装将原本封闭的厨房墙体拆除,打造为开放式厨房,并与餐厅融为一体,极大改善了公共区域的采光与通风。

同时,客厅与阳台的一体化设计,让自然光线毫无阻隔地涌入室内,形成了“光与风的流动线”。这种对动线的重新梳理,是让小户型显大、让旧房变新的核心手法。

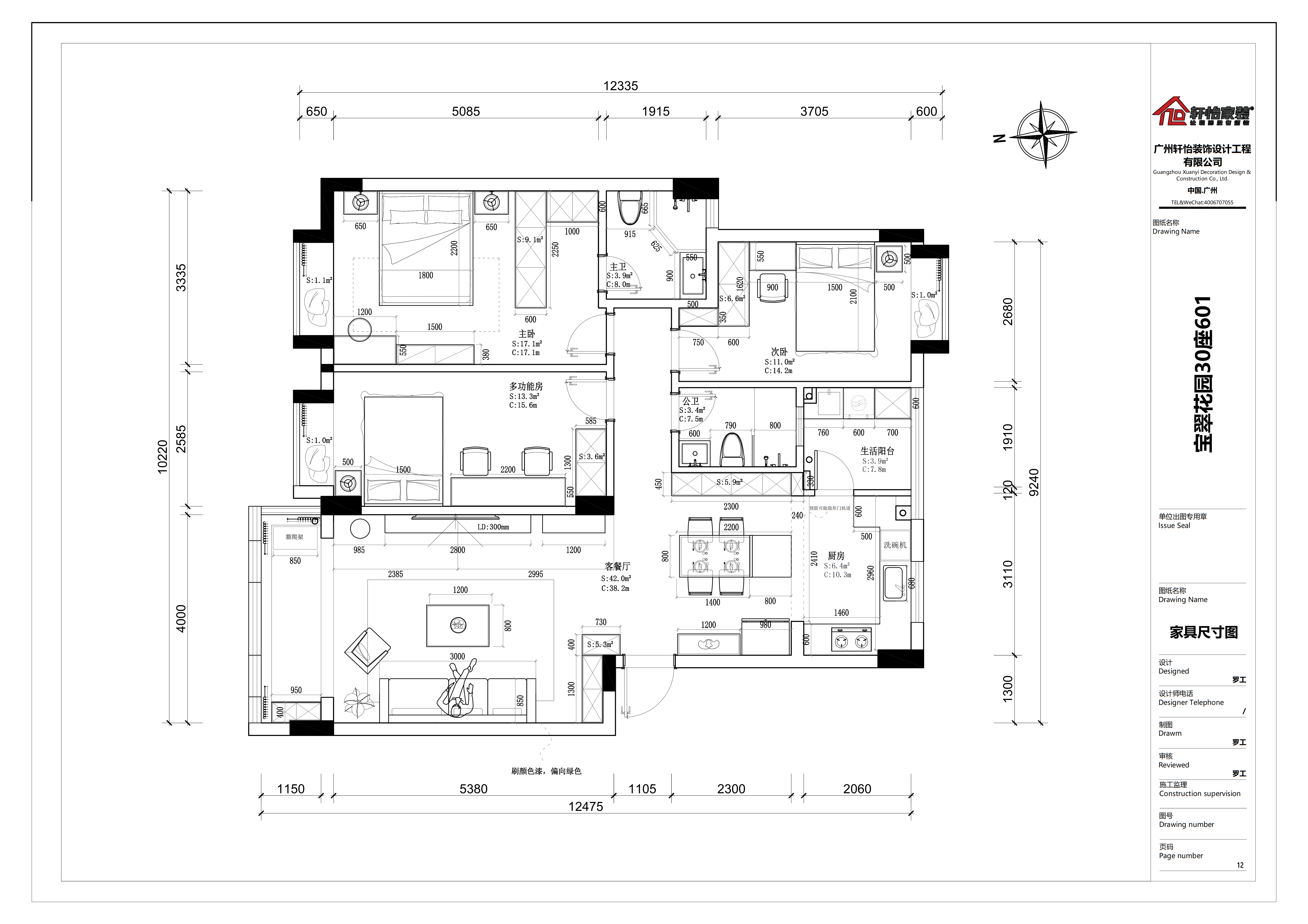
二、 收纳为王:全屋定制,实现整洁与美感的平衡
对于家庭装修而言,收纳是维持空间整洁的关键。
从客厅沙发旁的通顶收纳柜,到餐厅米白与木色拼接的餐边柜,再到多功能房的复合设计,每一处都精准地提升了空间利用率。

这种“藏八露二”的定制化收纳体系,将生活杂物完美隐藏,让家时刻保持原木风特有的清爽与秩序感。
三、 氛围营造:自然原木与留白,构筑治愈系家居
自然原木风的魅力在于能让人放松身心。
整个空间以温润的浅木色地板和家具为基调,搭配米色、浅绿色墙面,营造出柔和宁静的氛围。

没有复杂的造型和浮夸的色彩,通过留白美学和绿植、挂画等软装点缀,让家充满了自然呼吸感。
这种克制而温暖的设计,正是治愈现代人忙碌生活的良方。


四、 业主真实反馈
“当初选择轩怡家装,就是看中了他们对旧房改造的专业理解和实景案例。整个过程沟通非常顺畅,从拆改到定制,团队都很有经验。现在房子完全变了样,特别通透亮堂,收纳也做得太到位了,东西再多家里也显得很整洁。邻居来参观都说,这钱花得值,效果远超预期!”
品质始终如一:鑫蓝光灰白一体机纸领航
从加拿大寒带林到中国课桌,我们掌控每一克纸的品质轨迹。 深圳市鑫蓝光纸业有限公司,创始...(115)人阅读时间:2025-11-04
佛山旧房改造:轩怡家装121㎡原木风,砸
老房子普遍存在的格局昏暗、收纳不足等问题,如何通过设计得以解决?本期分享的这套由轩怡家...(201)人阅读时间:2025-11-04
【喜报】云图灵犀成功入选2025年四川省博
近日,四川省科学技术协会正式公布《2025年四川省博士创新站拟认定名单》,四川云图灵犀科技...(76)人阅读时间:2025-11-04
一体机纸过速印机出现一次进纸多张的处
1.检查并规范纸张处理 ·纸张状态:确保纸张没有受潮、粘连或带静电。如果纸张太轻,也可能导...(182)人阅读时间:2025-11-04
环氧粘接膜深度科普:电子粘接的“多
在电子设备愈发精密、功能持续迭代的当下,“粘接”早已不是“粘住就完事儿”的简单操作。...(60)人阅读时间:2025-11-04